Ozzano Emilia Centro

Ozzano Emilia Centro

In vendita
Appartamento
Ozzano dell'Emilia (Paese)
367.000 €
Descrizione
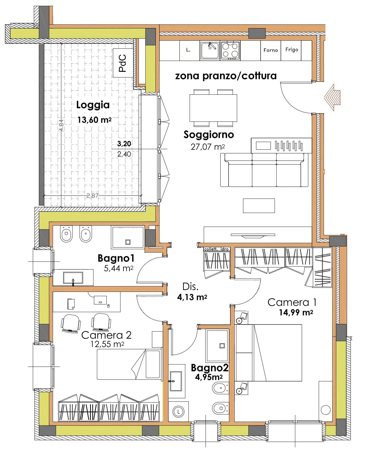
NUOVO APPARTAMENTO al 5° piano con ascensore con vista aperta, consegna novembre 2026, zona centrale comoda a tutti i servizi, composto da ingresso su soggiorno con angolo cottura, disimpegno arredabile con zona ripostiglio/armadio, 2 camere da letto (matrimoniale e doppia), 2 bagni finestrati, terrazzo a loggia di oltre 13mq, cantina ciclabile di circa 6mq ed autorimessa doppia di circa 34mq.
Classe energetica A4, parapetti terrazze in muratura per maggiore privacy, pannelli fotovoltaici, impianti riscaldamento autonomi con pompa di calore aria acqua per gestire riscaldamento acqua calda e fredda, tapparelle motorizzate in alluminio con cassonetto ad incasso nella muratura, zanzariere, predisposizione impianto raffrescamento idronico funzionante con la pompa di calore installata, predisposizione impianto allarme perimetrale ed interno, pavimentazione e rivestimenti bagno in gres porcellanato effetto pietra, sanitari posati filo muro/pavimento.
Caratteristiche principali
Codice:
AT072
Città:
Ozzano dell'Emilia (Paese)
Categoria:
Appartamento
Spese condominiali:
1 € / anno
Locali:
3
Camere:
2
Bagni:
2
Mq:
124,94
Box:
1
Mq Box:
34
Terrazzi:
1
mq Terrazzo:
13,6
Piano:
5
Anno:
2026
Classe energetica:
A4
Stato Immobile:
In Costruzione
Grado:
Signorile
Posizione:
Centro
Panorama:
Vista Aperta
Orientamento:
Est
Lati Liberi:
1
Giardino:
Comune
Arredi:
Non Arredato
Tipo Soggiorno:
Soggiorno
Tipo Cucina:
Angolo Cottura
Riscaldamento:
Autonomo
Tipo Riscaldam.:
Pompa di Calore
Tipo Impianto:
Pavimento
Fonte Energetica:
Elettrico
Acqua Calda:
Autonoma
Raffrescamento:
Split
Infissi:
PVC Doppio Vetro
Serramenti:
Nuovo
Persiana:
Tapparella Metallo
Pavim. Giorno:
Gres Porcellanato
Pavim. Notte:
Gres Porcellanato
Pavim. Cucina:
Gres Porcellanato
Pavim. Bagno:
Gres Porcellanato
Accesso Disabili:
Nessuna Barriera
Accesso interno disabili:
Pieno accesso
Isolamento:
Presente
Isolamento termico:
Cappotto esterno
Isolamento acustico:
Isolamento completo
Spessore cappotto (cm):
10
Destinato a residenti:
Si
Accessori
Ascensore
Bagno Handicap
Doppi Vetri
Fibra Ottica
Impianto Fotovoltaico
Impianto Satellitare
Parco Condominiale
Porta Blindata
Tapparelle Elettriche
Video Citofono
Zanzariere
Mappa
via sant'andrea, 35 - Ozzano dell'Emilia (BO)
Distanze
Posizione
Centro50 m
Parco pubblico50 m
Istruzione
Scuola materna300 m
Scuola elementare300 m
Scuola media300 m
Scuola superiore6 km
Università1,5 km
Mezzi di trasporto
Colonnina EV100 m
Fermata metro-bus-tram100 m
Stazione di servizio350 m
Altri servizi
Banca250 m
Chiesa300 m
Farmacia700 m
Supermercato100 m
Planimetrie
Richiedi informazioni
Invia
Cookie preference