San Lazzaro - Via Croce Idice

San Lazzaro - Via Croce Idice

In vendita
Appartamento
San Lazzaro di Savena (Idice)
420.000 €
Descrizione
Nuovo Appartamento a PREZZO AGEVOLATO, con convenzione ERS durata 20 anni poi a libero mercato senza necessità di pagare riscatti al Comune, immerso in un ampio parco alberato per vivere nella quiete, nel silenzio, staccando dai frenetici ritmi della città, beneficiando del relax trasmesso dalla natura, ma nello stesso tempo avendo a 250 mt i servizi della Via Emilia e potendo raggiungere il centro di San Lazzaro in soli 3,5 Km anche con pista ciclopedonale.
RECUPERO FISCALE SISMABONUS ACQUISTI FINO AD UN MASSIMO DI € 34.560 A BENEFICIO DELL'ACQUIRENTE.
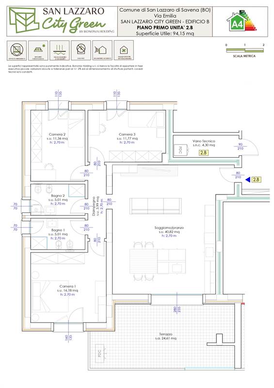
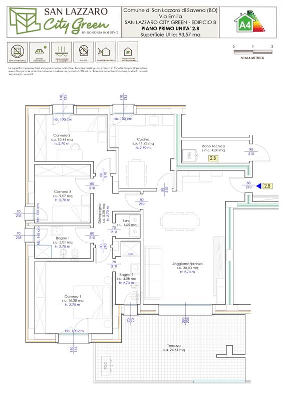
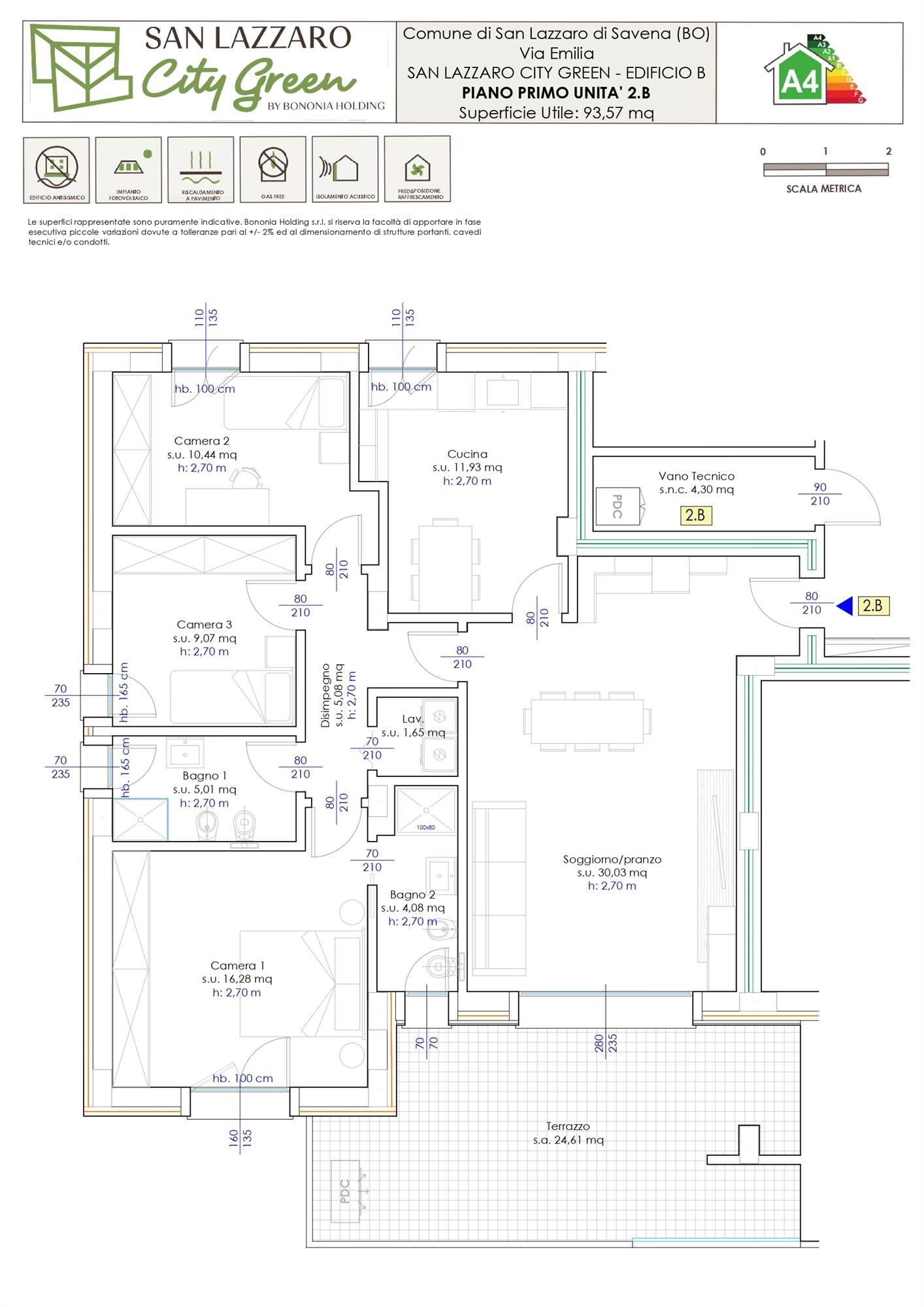
L'appartamento è composto da ampio salotto di 30 mq con accesso alla terrazza coperta di 24 mq un vero e proprio ampliamento della zona living, cucina abitabile, disimpegno, 3 camere da letto, 2 bagni finestrati, locale lavanderia oltre a comoda cantina al piano ed autorimessa di 18 mq compresa nel prezzo.
Classe energetica A2/A4, termocappotto esterno, impianto fotovoltaico privato, riscaldamento a pavimento, tapparelle motorizzate con alette regolabili, predisposizione per impianto di allarme, pavimenti in gres porcellanato con effetti moderni o effetti pietra, infissi in pvc bianco.
Le tecnologie inserite come dotazioni per il risparmio energetico (esempio impianto fotovoltaico privato esclusivo) abbinate ai materiali di costruzione consentiranno agli abitanti degli immobili di “San Lazzaro City Green” di avere un risparmio tangibile in termini di consumi.
Caratteristiche principali
Codice:
CITY GREEN 2.B.
Città:
San Lazzaro di Savena (Idice)
Categoria:
Appartamento
Locali:
4
Camere:
3
Bagni:
2
Mq:
134,73
Terrazzi:
1
mq Terrazzo:
24,53
Piano:
1
Anno:
2026
Classe energetica:
A4
Stato Immobile:
In Costruzione
Grado:
Signorile
Posizione:
Centro
Panorama:
Vista Aperta
Orientamento:
Nord Est Sud
Lati Liberi:
3
Giardino:
Comune
Arredi:
Non Arredato
Tipo Soggiorno:
Soggiorno
Tipo Cucina:
Angolo Cottura
Riscaldamento:
Autonomo
Tipo Riscaldam.:
Pompa di Calore
Tipo Impianto:
Pavimento
Fonte Energetica:
Fotovoltaico
Acqua Calda:
Autonoma
Raffrescamento:
Predisposizione
Infissi:
PVC Doppio Vetro
Serramenti:
Nuovo
Persiana:
Tapparella PVC
Pavim. Giorno:
Gres Porcellanato
Pavim. Notte:
Gres Porcellanato
Pavim. Cucina:
Gres Porcellanato
Pavim. Bagno:
Gres Porcellanato
Accesso Disabili:
Nessuna Barriera
Accesso interno disabili:
Pieno accesso
Isolamento:
Presente
Isolamento termico:
Cappotto esterno
Isolamento acustico:
Isolamento pareti
Accessori
Ascensore
Cancello Elettrico
Doppi Vetri
Fibra Ottica
Impianto Fotovoltaico
Impianto Satellitare
Parco Condominiale
Porta Blindata
Ripostiglio
Video Citofono
Mappa
Via Croce Idice, 2 - San Lazzaro di Savena (BO)
Distanze
Istruzione
Scuola materna1,2 km
Mezzi di trasporto
Fermata metro-bus-tram250 m
Altri servizi
Centro culturale750 m
Farmacia750 m
Supermercato3 km
Video
Richiedi informazioni
Invia
Cookie preference