San Lazzaro di Savena

San Lazzaro di Savena

In vendita
Appartamento
San Lazzaro di Savena
290.000 €
Descrizione
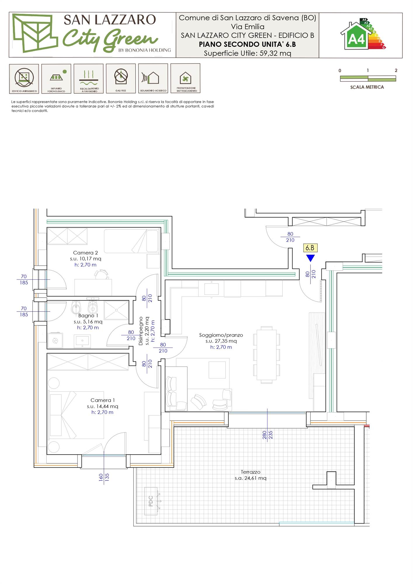
Nuovo Appartamento al 2° piano con ascensore, CON RECUPERO FISCALE SISMABONUS ACQUISTI FINO AD UN MASSIMO DI € 34.560 A BENEFICIO DELL'ACQUIRENTE. Immerso in un ampio parco alberato per vivere nella quiete, nel silenzio, staccando dai frenetici ritmi della città, beneficiando del relax trasmesso dalla natura, ma nello stesso tempo avendo a 250 mt i servizi della Via Emilia e potendo raggiungere il centro di San Lazzaro in soli 3,5 Km anche con pista ciclopedonale.
L'appartamento ha esposizione sud ovest, composto da salotto con angolo cottura di 27 mq calpestabili con accesso alla terrazza abitabile di 24 mq interamente coperta un vero e proprio ampliamento della zona living, disimpegno, 2 camere da letto, bagno e comoda cantina al piano. A parte autorimessa con possibilità di scelta, prezzi a partire da € 32.000. Possibilità di acquistare anche cantina ciclabile.
Classe energetica A2/A4, termocappotto esterno, impianto fotovoltaico privato, riscaldamento a pavimento, tapparelle motorizzate con alette regolabili, predisposizione per impianto di allarme, pavimenti in gres porcellanato con effetti moderni o effetti pietra, infissi in pvc bianco.
L'appartamento è inserito in una piccola palazzina facente parte di un nuovo comparto di rigenerazione urbana inserito all’interno di un vero e proprio parco alberato che formerà un grande giardino unico annesso alla struttura ambientale esistente con spazi privati e comuni di alta qualità.L’accesso al comparto sarà favorito dalla realizzazione di nuovi percorsi pedonali e ciclabili che consentiranno agli abitanti del nuovo residence “San Lazzaro City Green” di beneficiare di comodi collegamenti al tessuto esistente, raggiungendo a 250 mt la via Emilia dove si concentrano le principali attività commerciali e raggiungendo a soli 350 mt la fermata autobus, a 750 mt la farmacia, a 1,2 Km la scuola materna.
La progettazione delle nuove abitazioni e del comparto abitativo ove si inseriranno sono state pensate per fornire uno standard alto di vivibilità (saranno utilizzate le migliori tecnologie per risparmio energetico degli edifici) con attenzione particolare alla cornice di verde che non rimarrà solo un elemento decorativo secondario ma diverrà elemento fondamentale della rigenerazione, andando a creare superfici erbose che si uniranno all’area di vegetazione spontanea che affianca le nuove abitazioni, dove è presente una rigogliosa macchia di vegetazione spontanea generata da un ex vivaio. Le nuove abitazioni saranno pertanto inserite in una vera e propria infrastruttura verde che fungerà da POLMONE VERDE CENTRALE per la mitigazione degli effetti climatici attraverso la permeabilità del terreno, la piantumazione di circa 280 nuovi alberi e la salvaguardia di circa 87 alberi esistenti.
“San Lazzaro City Green” sarà costituito da 8 piccole palazzine, realizzate in classe energetica dalla A2 alla A4, ogni unità sarà autonoma nei consumi impianto fotovoltaico privato a beneficio esclusivo dell’immobile, predisposizione impianto aria condizionata, riscaldamento a pavimento, tapparelle motorizzate, cappotto esterno, ampie terrazze utilizzabili come zone living in aggiunta al salotto.
Le tecnologie inserite come dotazioni per il risparmio energetico (esempio impianto fotovoltaico privato esclusivo) abbinate ai materiali di costruzione consentiranno agli abitanti degli immobili di “San Lazzaro City Green” di avere un risparmio tangibile in termini di consumi.
Caratteristiche principali
Codice:
CITY GREEN 6.B.
Città:
San Lazzaro di Savena
Categoria:
Appartamento
Locali:
3
Camere:
2
Bagni:
1
Mq:
91,82
Terrazzi:
1
mq Terrazzo:
24,53
Piano:
2
Anno:
2026
Classe energetica:
A4
Stato Immobile:
In Costruzione
Grado:
Signorile
Posizione:
Centro
Panorama:
Vista Aperta
Orientamento:
Nord Est
Lati Liberi:
3
Giardino:
Comune
Arredi:
Non Arredato
Tipo Soggiorno:
Soggiorno
Tipo Cucina:
Angolo Cottura
Riscaldamento:
Autonomo
Tipo Riscaldam.:
Pompa di Calore
Tipo Impianto:
Pavimento
Fonte Energetica:
Fotovoltaico
Acqua Calda:
Autonoma
Raffrescamento:
Predisposizione
Infissi:
PVC Doppio Vetro
Serramenti:
Nuovo
Persiana:
Tapparella PVC
Pavim. Giorno:
Gres Porcellanato
Pavim. Notte:
Gres Porcellanato
Pavim. Cucina:
Gres Porcellanato
Pavim. Bagno:
Gres Porcellanato
Accesso Disabili:
Nessuna Barriera
Accesso interno disabili:
Pieno accesso
Isolamento:
Presente
Isolamento termico:
Cappotto esterno
Isolamento acustico:
Isolamento pareti
Destinato a residenti:
No
Impianto d’irrigazione:
No
VMC:
No
Accessori
Ascensore
Doppi Vetri
Fibra Ottica
Impianto Fotovoltaico
Impianto Satellitare
Parco Condominiale
Porta Blindata
Tapparelle Elettriche
Video Citofono
Mappa
Via Croce Idice, 2 - San Lazzaro di Savena (BO)
Distanze
Istruzione
Scuola materna1,2 km
Mezzi di trasporto
Fermata metro-bus-tram250 m
Altri servizi
Banca750 m
Chiesa800 m
Farmacia750 m
Supermercato3 km
Video
Richiedi informazioni
Invia
Cookie preference