Osteria Grande - via Collodi

In vendita
Porzione Villa
Castel San Pietro Terme (Osteria Grande)
415.000 €
Descrizione
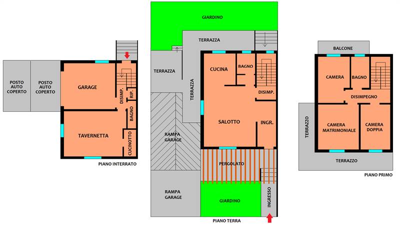
Porzione di villa bifamigliare cielo-terra in pietra a vista, con entrata indipendente, LIBERA SUBITO, in strada chiusa molto silenziosa, servita da marciapiedi che collegano ai principali servizi.
La villa è composta da ingresso, salone, cucina abitabile, 3 camere da letto, una terrazza al piano terra ideale per momenti di relax pranzi/cene all'aperto, 3 terrazze, 3 bagni, tavernetta con camino e cucinotto, ripostiglio nel sottoscala, comodo garage, 2 posti auto coperti e chiusi con basculante, porticato sull'entrata e giardino privato. Impianto aria condizionata, infissi con doppi vetri, camino in tavernetta, termocappotto interno inserito nella muratura esterna.
Caratteristiche principali
Codice:
P 157
Città:
Castel San Pietro Terme (Osteria Grande)
Categoria:
Porzione Villa
Locali:
6
Camere:
3
Bagni:
3
Mq:
200
Box:
2
Mq Box:
20
Mq Giardino:
100
Anno:
1991
Classe energetica:
G
Stato Immobile:
Buono
Posizione:
Centro
Panorama:
Vista Giardino
Orientamento:
Est Sud Ovest
Lati Liberi:
3
Giardino:
Privato
Arredi:
Non Arredato
Tipo Soggiorno:
Soggiorno
Tipo Cucina:
Abitabile
Riscaldamento:
Autonomo
Tipo Riscaldam.:
Caldaia
Tipo Impianto:
Termosifoni
Fonte Energetica:
Metano
Acqua Calda:
Autonoma
Raffrescamento:
Split
Infissi:
Alluminio Doppio Vetro
Serramenti:
Buono
Persiana:
Tapparella PVC
Pavim. Giorno:
Ceramica
Pavim. Notte:
Ceramica
Pavim. Cucina:
Ceramica
Pavim. Bagno:
Ceramica
Accesso Disabili:
No
Accesso interno disabili:
Non accessibile
Accessori
Aria Condizionata
Armadio a Muro
Camino
Cancello Elettrico
Doppi Vetri
Ingresso Indipendente
Porta Blindata
Ripostiglio
Zanzariere
Mappa
via anna frank, 4 - Castel San Pietro Terme (BO)
Planimetrie
Richiedi informazioni
Invia
Cookie preference