Ozzano Emilia - Via Sant'Andrea

Ozzano Emilia - Via Sant'Andrea

In vendita
Appartamento
Ozzano dell'Emilia
365.000 €
Descrizione
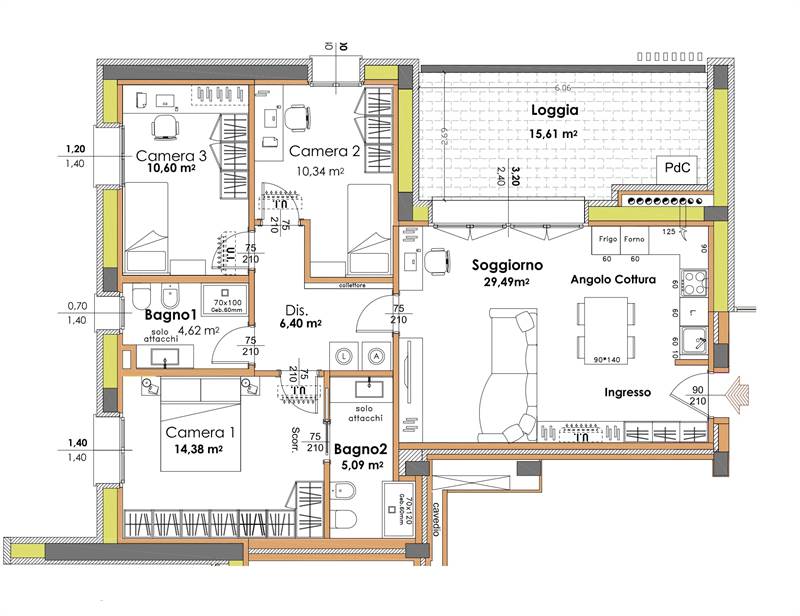
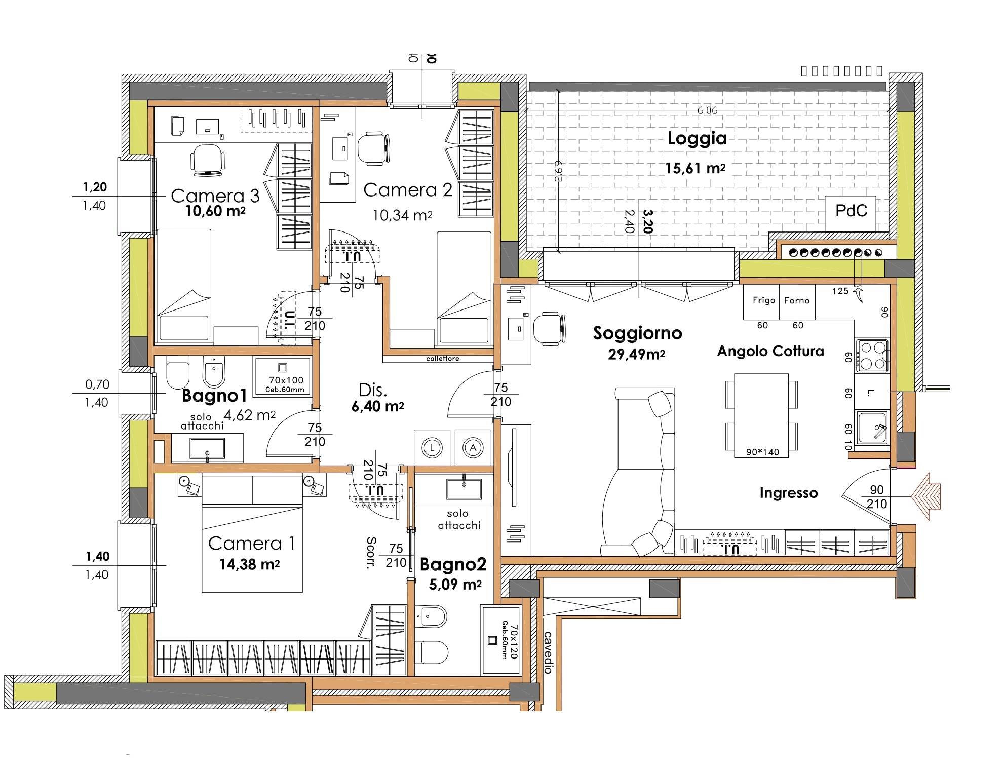
Nuovo appartamento al 4° Piano, in palazzina situata nel centro di Ozzano, composto da ingresso su ampia zona giorno di circa 30 mq calpestabili, ampio disimpegno arredabile per zona lavatrice/asciugatrice, 3 camere da letto, 2 bagni (di cui uno privato nella camera matrimoniale), terrazza abitabile coperta di circa 16 mq. A parte cantina e garage al piano interrato con possibilità di scelta.
NO ONERI DI MEDIAZIONE A CARICO ACQUIRENTE. Classe energetica A o superiore, parapetti terrazze in muratura per maggiore privacy, pannelli fotovoltaici, impianti riscaldamento autonomi con pompa di calore aria acqua per gestire riscaldamento acqua calda e fredda, tapparelle motorizzate in alluminio con cassonetto ad incasso nella muratura, predisposizione impianto raffrescamento idronico funzionante con la pompa di calore installata, predisposizione impianto allarme perimetrale, pavimentazione in gres porcellanato formati fino a 60x60 cm effetto legno 20x120 cm, sanitari posati filo muro/pavimento.
Sito Web cantiere con le tipologie disponibili: https://primeimmobiliare.net/it/cantieri/SANT-ANDREA-Ozzano-Emilia---CENTRO-12741-5
Caratteristiche principali
Codice:
SANT'ANDREA 1-A17
Città:
Ozzano dell'Emilia
Categoria:
Appartamento
Locali:
4
Camere:
3
Bagni:
2
Mq:
121,49
Terrazzi:
1
mq Terrazzo:
15,61
Piano:
4
Anno:
2026
Classe energetica:
A4
Stato Immobile:
In Costruzione
Grado:
Signorile
Posizione:
Centro
Panorama:
Vista Aperta
Orientamento:
Nord Est
Lati Liberi:
2
Giardino:
Comune
Tipo Soggiorno:
Salone
Tipo Cucina:
Angolo Cottura
Riscaldamento:
Autonomo
Tipo Riscaldam.:
Pompa di Calore
Tipo Impianto:
Pavimento
Fonte Energetica:
Elettrico
Acqua Calda:
Autonoma
Raffrescamento:
Predisposizione
Infissi:
PVC Doppio Vetro
Serramenti:
Nuovo
Persiana:
Persiana PVC
Pavim. Giorno:
Gres Porcellanato
Pavim. Notte:
Gres Porcellanato
Pavim. Cucina:
Gres Porcellanato
Pavim. Bagno:
Gres Porcellanato
Accesso Disabili:
Nessuna Barriera
Accesso interno disabili:
Pieno accesso
Isolamento:
Presente
Isolamento termico:
Cappotto esterno
Isolamento acustico:
Isolamento pareti
Accessori
Ascensore
Bagno Handicap
Doppi Vetri
Impianto Fotovoltaico
Impianto Satellitare
Parco Condominiale
Porta Blindata
Video Citofono
Mappa
Via Sant'Andrea, 35 - Ozzano dell'Emilia (BO)
Planimetrie
Richiedi informazioni
Invia
Cookie preference